仙桃房网
您当前位置:仙桃房网>新房列表>明珠豪庭花园洋房

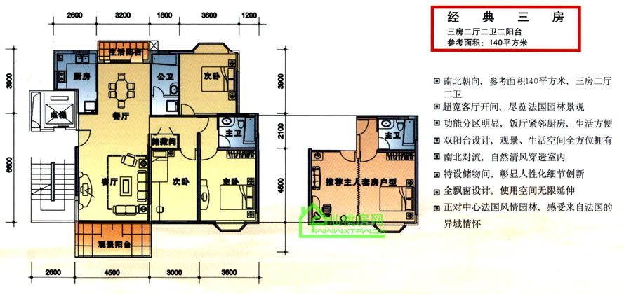
明珠豪庭花园洋房

已经售完

0728-3323668

楼盘免费咨询电话

参考均价 已售完
优惠折扣 暂无

[我要看房]最新看房活动、优惠信息免费通知我

参与人数:117人

开盘时间 2007-11-8 交房时间 2009-3-31
楼盘地址 仙桃市宏达路126号[城南版块]
主力户型 全部户型
物业公司 武汉华夏物业管理有限公司 物  业  费

0728-3323668

楼盘免费咨询电话

安全通话隐藏真实号码,致电售楼处了解更多信息

明珠豪庭花园洋房资讯

更多资讯
  • 预售证仙开管预售

    1970-01-01

明珠豪庭花园洋房问答

更多问答
您好!感谢您的关注,明珠豪庭的复式为170-180平米的复式户型,现房销售,欢迎来参观。谢谢 !

明珠豪庭花园洋房相册

获取优惠