大家还记得之前热搜上有个这样的话题
#日本最省女孩#吗?

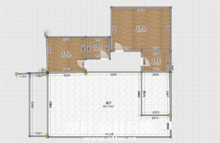
在仙桃,有这么一套房
不用降低生活质量也能买得起


地址:仙桃市汉江大道特1号
户型:3室2厅
建面:97㎡
单价:6495元/平米
总价:63万/套
看房经纪人: 万银
联系电话:18688980026





格局方正大气,空间开阔的客厅,连接阳台,视野向外延伸,提高了活动的自由度,让生活更具空间感和整体感。


餐客相连充分利用了空间,在非用餐时间还可以当成休闲区,非常实用。


L型厨房采用白色系的瓷砖墙面、石材台面设计,可以显得更宽敞通透,配置窗户,保持通风,避免油烟味过重。


值得注意的是虽然阳台安装了安全窗,不过一点不影响引入充盈的自然光线,保障空气的自由流通,还能拉伸视觉空间,拥揽更多园林美景。




三间卧室采光和视野都比较好,房屋空间除了宽阔可以住人之外,还可用来搁置物品、饱览窗外美景。

内部环境:小区设有地上地下停车位、儿童乐园、幼儿园,方便居民日常使用。整体的人均素质高,租户少,业主自住较多。
外部环境:小区靠近沔街大道,涵盖新天地国际广场购物中心、电影院、沃尔玛生活超市、沔街休闲餐饮等业态,便于逛街购物;多条公交线路连通仙桃各区域,出行便利。
不管你是买房还是卖房
都可以留言告诉小编
小编愿倾尽洪荒之力
为您的置业之路保驾护航
