所有的听说,都不如此刻的亲眼所见。由仙桃市嘉隆地产开发有限公司倾情打造的大型品质住宅 - 时代天骄,从设计到筹备,从户型到小区的整体规划,精益求精的专注于每个工程细节,全方位构建理想人居。

▲时代天骄营销中心▲

▲时代天骄实景▲
8月的骄阳依旧很耀眼,而时代天骄的工地上的进度却丝毫没有懈怠!由此可看出时代天骄工程建设的规范性、人性化与专业性。项目三期高层电梯房6#楼进度最快,已喜封金顶,10#楼已建至13层,11#楼已建至20层,12#楼目前建至19层,待下个月又可看到全新的面貌。

▲6#楼喜封金顶▲

▲10#楼已建至13层▲

▲11#楼已建至20层▲

▲12#楼已建至19层▲

▲三期地下车库正在施工中▲
时代天骄一期已经完美交房,小区的绿化与道路都已完善。二期房源还有少量房源,目前三期高层在户型设计力求精益求精,采用更符合居住习惯户型。面积为96-212㎡多种户型,户型方正、南北通透、采光通风良好,力求打造每幢建筑间的景观的均好性。小区采用人车分流的设计,使小区更加规范安全。目前正在全城销售中,有意向者可千万不要错过,详细了解可前往营销中心咨询。

▲小区出入口实景▲

▲一期房源实景图▲

▲小区绿化实景▲

▲小区绿化实景▲

▲小区儿童设施实景▲
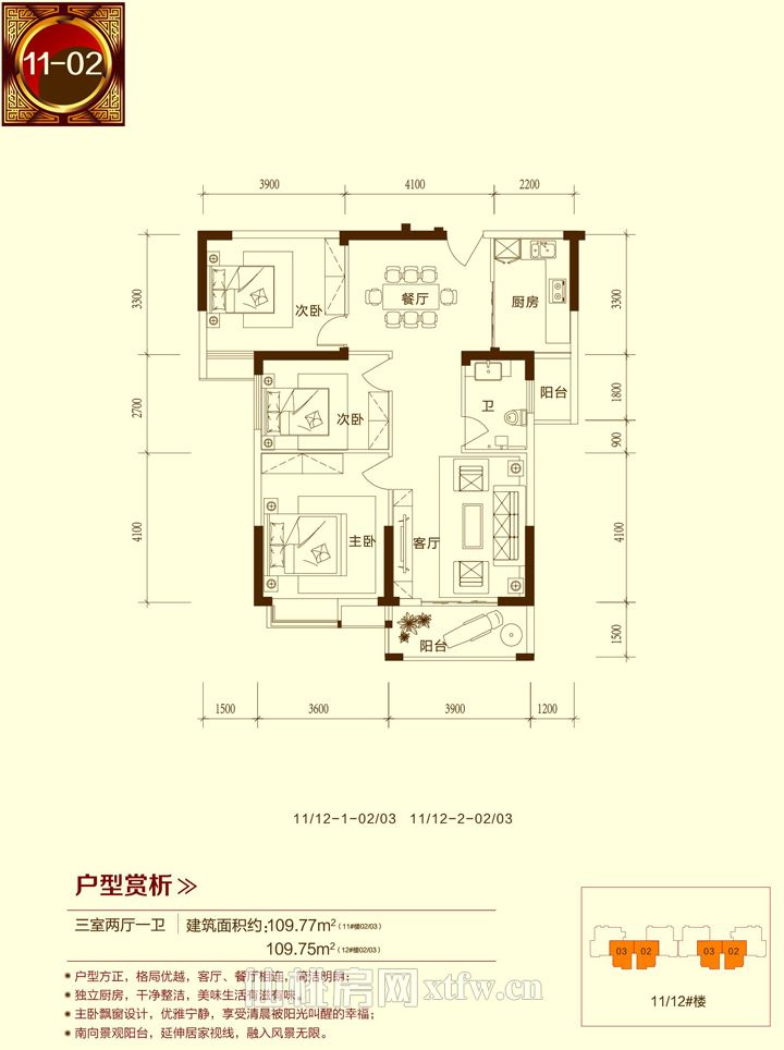
三期户型鉴赏






时代天骄地理位置好,周边配套教育、银行、超市、医院、酒店、娱乐全部覆盖,于此占据城西城市发展优势,畅达的交通,悦享城市便捷生活。小区配有大型地下停车场,路面还有电动车停车位,车位非常充足,时代天骄仔细考量每一个细节,以成熟品质,向居者呈现完美生活。

时代天骄
江景宜居生活社区
三期建筑面积约96—212㎡多种户型
不用排队直接购买!!!
预售许可证号:【20180024】、【20180035】
诚邀广大购房者前往营销中心了解
项目地址:丝宝北路李小双运动城路口处(10路车可以直达)
项目热线:0728-8871666
欢迎购房者加入仙桃购房微信群,扫码加杨咩咩微信后拉群(微信号xtfw008),对仙桃任何楼盘感兴趣的可找杨咩咩推荐靠谱置业顾问,有购房需求的也可以找杨咩咩陪购楼盘进行咨询↓
