
这里有仙桃各楼盘的户型图
这里有各装修公司的实景图
这里有各种风格的效果图片
总有一款适合你吧!
今年将是仙桃几个楼盘集中交房的时候,有很多朋友都在向小编咨询,怎么找装修公司,哪种装修风格好,装修预算应该怎么计划,为了尽量满足各位网友的要求,小编萌生了做《样版间连连看》的想法。
相信各位网友鼠标一点,在 各大家居网站可以找到很多样版房的图片,但那些都是天外飞仙,海市蜃楼,因为那些离咱们仙桃太远了,别人能做到的,我们这个小城市不一定能做到。比如设计、工艺、师傅手艺、质量要求、价格……
了解到网友的需求,我们闻机而动,我们要搜集仙桃各大小楼盘的各种户型、各装修公司做的各种装修风格,一一网罗发布上来,供网友交流、参考。
欢迎各装修公司或者已装修完工的网友,大胆晒出你们的装修成果!
晒家居,找小宅,小宅QQ :97023744

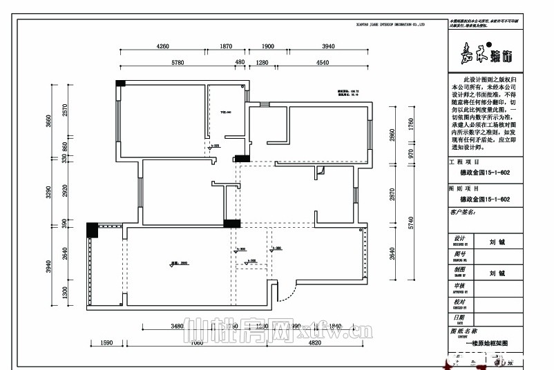
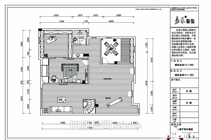
户型图
一楼原始框架图

一楼平面布置图

二楼原始框架图

二楼平面布置图

上周日与嘉禾的许总联系好了看样版间,上午10点我们提前在德政金园富迪超市门口等候,清晨、镜中人、仙桃夜雨、五瓣丁香等网友相继而来,许总很细心,为我们准备了红茶和装了资料的便携袋。
走进小区,见花团锦簇,柳绿成阴。惹眼的是那鲜艳的月季花儿,红的像火,粉的像霞,让人赏心悦目。细风轻轻地从耳边吹过,月季花儿轻轻晃动着身体,像个娇美的小公主在翩翩起舞。在这迷人的季节,处在这花啊绿的海洋中,一切都是那么的怡人、那么安宁。住在这里,工作劳累的人们,可以很好地放下压力,享受生活。
_ueditor_page_break_tag_
小区的美景






入户花园和餐厅
_ueditor_page_break_tag_




客厅和休闲区

这面背景墙的造型我在一个卖陶瓷的店子里见过,造价怕要一万多。全部用微晶石铺贴,看到很有档次。

_ueditor_page_break_tag_





_ueditor_page_break_tag_

网友们都别喜欢这个灯,像闪光的钻石,气派、动感。听说是业主自己从广州买回来的,价值不菲呢。


厨房



_ueditor_page_break_tag_



