2021年1月20日,仙桃市自然资源和规划局发布了尚书别院项目规划方案批前公示。

【主要经济技术指标】
规划用地面积:13602平方米
建设用地面积:29187.52平方米
住宅建筑面积:23227.66平方米
容积率:3.0
建筑密度:24.91%
绿地率:25.51%
规划住宅:196套

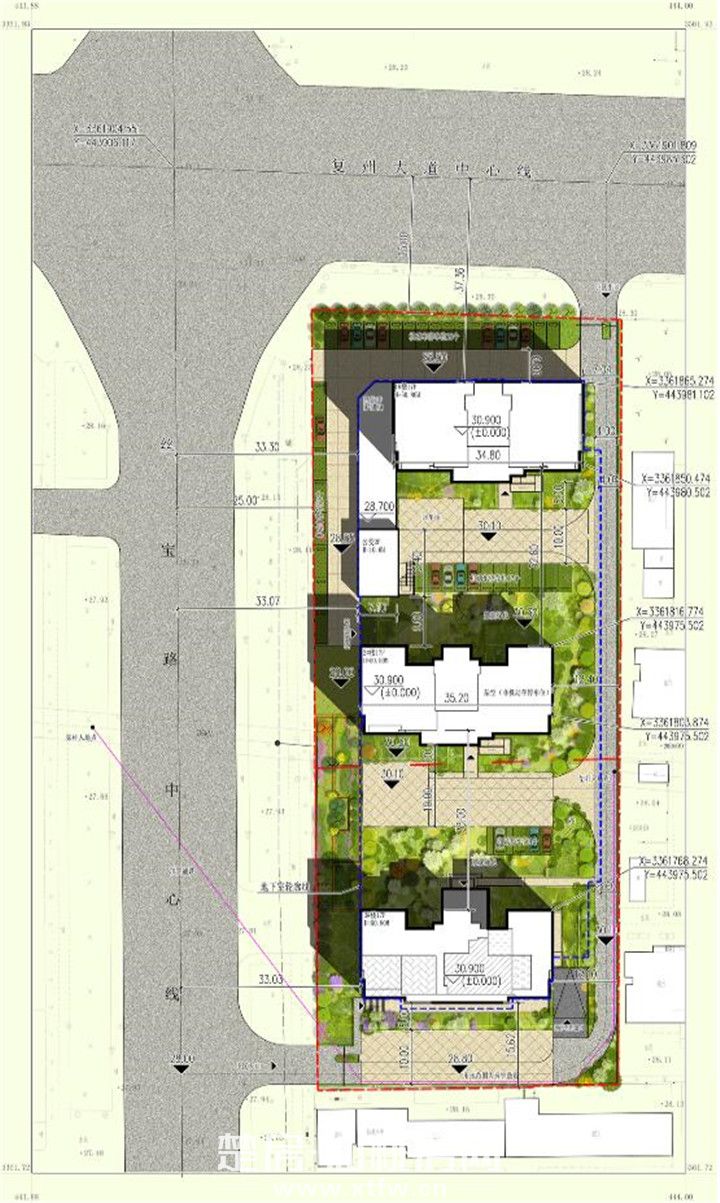
【效果图】

【总平图】

【日照分析图】

湖北丝宝股份有限公司申报的尚书别院项目位于复州大道以南、丝宝路以东,紧邻仙桃丝宝中学。

公示时间:2021年1月20日-2021年1月28日。
有关单位或个人对该项目审批有任何意见或建议的,可在公示期间通过拨打电话:0728-3223409 0728-3319260向仙桃市自然资源和规划局反映。
如对该报建项目平面规划方案(批前)有异议,要求举行听证的,请在公示之日起7日内,书面告知规划局。
说明:该项目土地使用权出让年限为2004年-2054年(50年)。
扫码进仙桃房网购房群,或者加微信号(xtfw666)庄庄,了解第一手楼盘信息,与购房者交流;同时,可免费咨询仙桃购房政策、房产信息、楼盘资讯等!

近期想置业的朋友,如果有心仪的房源,可关注及时入手,通过仙桃房网团购看房,均可参与优惠,详情可添加小编微信(xtfw666)咨询了解,或拨打电话:18986922089 庄庄
