当房屋基本满足人初级的生理、安全需求之时,社交、尊重、自我满足这些更高层次的需求便更为迫切,而迎合这种需求大有可为的地方,便在于对人居生活空间的升级。
水云间五期,建面约110㎡户型,面宽更大、动线更清晰、功能空间更丰富,全方位满足居住需求。

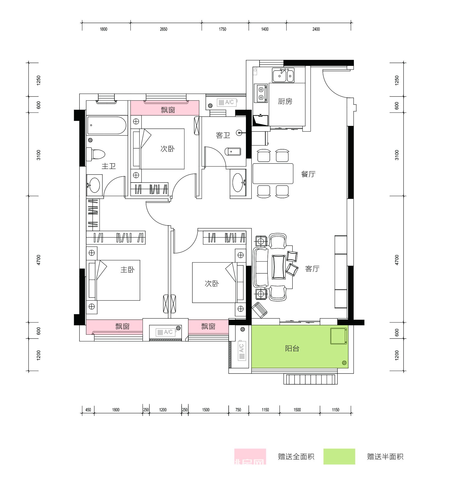
*户型图
一体化空间 现代进阶生活样本
水云间五期建面约110㎡户型
打造LDKG餐客厨阳台一体化家庭场域
在厨房烹饪完美食
转身就能与餐厅的家人朋友分享
这种亲密有度的和谐生活场景
正是家的温暖所在
空间利用率发挥的淋漓尽致
充分重视家庭成员间的互动情景
在无障碍的大空间里自由交流
让家人有爱更亲密

*实拍图

*实拍图
三开间向南 阳光满溢生活向暖
水云间五期建面约110㎡户型
以约10米南向三开间的设计
满足您对阳光的所有渴望
三开间向南让房间、客厅都沐浴在阳光下
享受充足的采光与观景视野
大尺度的空间呈现
室室皆采光,面面都瞰景

*实拍图

*实拍图
主卧独立套间 享私密化品质生活
水云间五期建面约110㎡户型
主卧自带独立设计的三段式卫浴空间
让生活更加便捷舒适
您可以在忙碌的一天后
回到这个温馨的私密空间
尽情享受属于自己的时光

*实拍图

*实拍图
水云间五期
三室科学布局,零死角更实用
为追求幸福生活的居者
提供恰到好处的入场选择

*鸟瞰图
水云间五期
建面约77-137㎡江滩公园旁生态江景房
单价低至3988元/㎡+
买房支持每平减zui高1000元/㎡政府购房补贴
高性价比 临江高层 自然美景 尽收眼底
