这个新年安新家!
好房子当然需要好家电来配套!
水云间五期想你所想
买房送小米全屋智能家电
以更好的品质江景准现房
给家人一份惊喜
帮你省心又省钱

*海报图
置业送家电 幸福一站配齐
买冰箱的钱,省了!
买洗衣机的钱,省了!
买电视机的钱,省了......
即日起-2025年2月15日
在水云间五期购房
送小米全屋智能家电礼包
幸福生活,一站配齐!

*网络示意图,仅供参考
江岸实景 美好一路之隔
水云间五期
距离江滩公园仅一路之隔
多重自然生态植被
多样运动设施场地
近享水岸惬意舒适
实现24小时新鲜健康鲜氧生活

*实拍图

*实拍图
占位主城 配套一步到位
水云间五期落址于仙桃城芯
项目周边有西桥菜场、交通路菜场双菜场
好邻居、银泰仙商、富迪三友等成熟商圈
板块内生活配套完善
乐享缤纷城芯生活
成就品质生活格局

*区位图
从“好房子”到“好生活”
水云间五期
让美好落地,让幸福生根
新春返乡季,钜惠焕新家
春节购房活动重磅来袭

*海报图
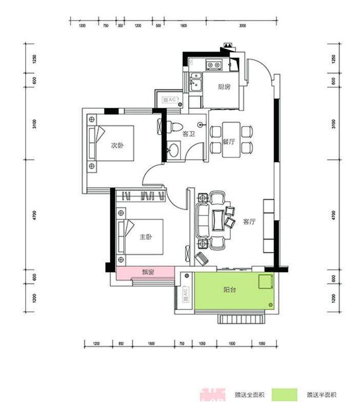
建面约77㎡轻盈小户型
可选带装修交付
两室两厅一卫设计
布局合理,功能齐全
安家成本更低,负担更轻

*户型图
水云间五期
建面约77-137㎡江滩公园旁生态江景房
单价低至3988元/㎡+
买房支持每平减zui高1000元/㎡政府购房补贴
高性价比 临江高层 自然美景 尽收眼底
项目电话:
4000070728转200
项目地址:
仙桃市干河办事处麦芽路(9路公交车直达)
-广告-
