政府对一个城市的发展规划往往决定了城市未来发展的方向。放眼仙桃,在老城区拥有地位的同时,随着市政府的南迁,新的城市亦逐渐形成。迅速崛起的城南版块,凭借快速展开的核心规划以及政府鼎力支持等强大优势奠定了城南成为未来重点发展方向的地位。带大家去看的是位于城南版块核心地位的紫金城。
项目简介

紫金城,雄踞仙桃南城核心区,紧邻318国道(黄金大道),周边市客运总站、市政府、体育广场、仙桃文化步行街、美食文化一条街、天诚国际大酒店,让你轻享 5中央生活圈,未来更有银泰城市综合体,汇聚城市“一站式”繁华配套,商机无限,这里必将是仙桃未来核心区域和交通枢纽,圈定仙桃都市的未来格局。
咨询电话:400-000-0728 转 029
项目地址:黄金大道与致富路交汇处(实验二小实验部对面)
新优惠动态:购买三房户型总价减5万,购买两房户型总价减3万
_ueditor_page_break_tag_售楼部初印象①
售楼部初印象
下午两点多,小编骑车从步行街沿着沙嘴路到紫金城,5的车程便可到紫金城了。当然,习惯坐公交的朋友也可以坐15路公交到“仙桃五中(仙桃二中实验部)”站下车,再步行2可到达紫金城售楼部了。

售楼部的外墙底色为紫色,金色的字体与其搭配起来给人一种尊贵和精致的感觉。走进售楼部看到紫金城的整洁干净的前台和墙壁上简单的logo。

_ueditor_page_break_tag_售楼部初印象②
左手边的是洽谈区,可以看到售楼部的桌椅的也是以紫色系为主的。

右手边的是沙盘讲解和户型模型区,在听完置业顾问讲解沙盘之后,再去研究一下户型模型是来看房的朋友常走的一个流程。

在售楼部的墙上还有紫金城装修的效果图,既能让来看房的客户更直观的了解户型,又能给已在紫金城买房的业主提供一些装修上的参考。

_ueditor_page_break_tag_沙盘介绍
沙盘介绍
接下来让我们把注意力转到沙盘上,沙盘可是售楼部里面很重要的设备,是大家了解项目规划的主要信息来源。据置业顾问介绍说,期规划为1#~9#,1~8#为现房,可即买即住,小编将各个楼号都标注出来,让大家能更直观的了解紫金城住宅楼的分布情况。

在项目的西边是未来会规划的元泰商业综合体,与项目的沿街商铺有一路之隔,可以想像得到以后绝旺的人气。在小区的外围还有一圈车道,可直通致富路,方便小区业主出行。


外围车道
在大门入口处设置了智能门禁系统,保障了小区业主的人身和财产安全。进入小区之后能看到一个小广场了,晚饭后跟爸妈或者老婆子女在这小广场上散散步,聊聊天,生活也是很惬意的。

_ueditor_page_break_tag_项目现场了解①
项目现场了解
看过了沙盘,置业顾问直接带小编来到了项目现场,了解整个项目的情况和规划,在脑中回想之前在沙盘了解到的信息,与现场做比对,更能了解紫金城的整体情况。
不要以为这个柱子是没意义的哦,置业顾问介绍说这完工后将是紫金城醒目的标识,让大家在老远能看到紫金城的所在地。在前排的依次是1、2、4号楼了,楼下的绿化正在建设当中。


这里将会有8个小喷水池,配上绿化景观,相信这里的景观也会很棒。两边的是商铺,看起来很不错哟。

_ueditor_page_break_tag_项目现场了解②
再往里走看到保安室了,等建工完毕之后,没有门禁卡是进不去的,紫金城业主的人身安全都能得到保障。

二排的依次是8、3、5、6号楼,三排的是7号楼和9号楼,现阶段1~8号楼都是现房,9号楼正在打地桩,预计在元旦会开盘。



正在打地桩的9号楼
_ueditor_page_break_tag_户型介绍①
户型介绍
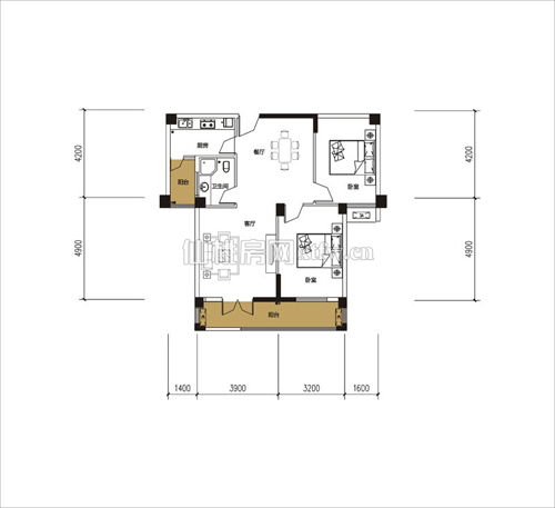
在看现场的同时,置业顾问还带小编去看了现在主推的两个户型。先,我们看的是94.5平米的紧凑两房。

进大门后是餐厅,大门左边是厨房,厨房还设有生活小阳台。

厨房小阳台
客厅和主卧共用一个超大阳台,次卧入口和主卧入口相邻,方便父母照顾子女,整个布局温馨至。

客厅

主卧

次卧
_ueditor_page_break_tag_户型介绍②
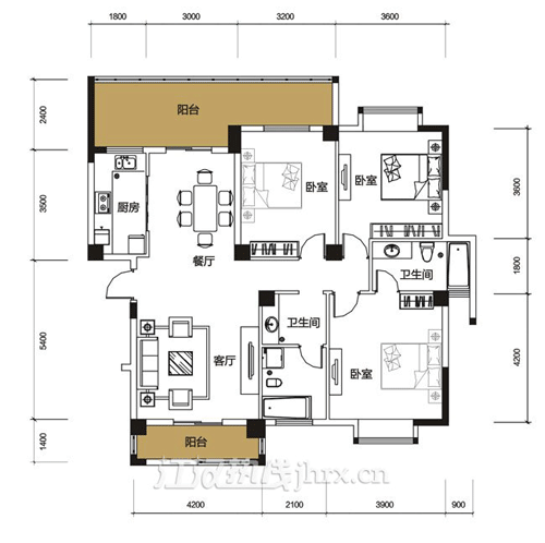
接下来看的是141.06平米的三房。餐厅和客厅相连,南北双阳台,采光通风效果都佳。

户型设计合理,动静分离。客用卫生间干湿分区,主卧带卫生间,生活更方便。

与餐厅相连的阳台

与客厅相连的阳台


南北卧室双飘窗
_ueditor_page_break_tag_户型介绍③
在拍摄期间,小编得到了紫金城一家业主的允许,进他家去拍摄他已装修好,正做清洁收尾的房子,小编觉得装修的很不错哟,大家权当成是样板间来了解一下吧。这是129.18平米的三房,户型图如下。

南北双阳台,且餐厅连接着超大阳台,阳台空间很大,摆个麻将桌绰绰有余。亲戚朋友来的时候在阳台上搓搓麻将,聊聊天,联络感情。

厨房

餐厅

与餐厅相连的阳台
本来主卧旁是个较小的次卧,可是业主将这个小房与本来的主卧连了起来,中间稍做遮挡,既保证了卧室的私密性,又使得主卧的面积也扩大了不少,很棒哟。

主卧

另一间次卧
_ueditor_page_break_tag_周边配套一览①
周边配套一览
好了,看完了小区,我们一起来看看周边配套都有些啥吧。细心的朋友在来紫金城的路上可能发现了学校、医院之类的,小编这给您把紫金城的周边配套来盘点一下。在紫金城营销斜对面是仙桃二中实验部,向东步行也不过两而已。

再从紫金城营销向西走5左右,可以到实验二小的实验部,紫金城业主的小孩上学都很方便呢。

好了,再看看这湖北脑血管病医院,离紫金城营销3的车程,步行的话,也不过才5、6。

这附近还有银行配套,生活少了银行可怎么能行。骑车也5、6的样子。

_ueditor_page_break_tag_周边配套一览②
除了二中实验部和二小实验部,还有汉江中学和汉江小学,骑车也是在10之内。

汉江中学

汉江小学
并且紫金城离仙桃市客运站也不过5左右的车程,出行十分方便;在客运站对面也有个江汉医院,小病急病统统都可以解决了。

客运站

江汉医院
小结
相信大家对紫金城应该也有了一些了解,它身处于仙桃未来发展大方向的城南,却拥有堪比老城区的生活配套,住在这里的业主给小编的感觉是既抓住了城市未来的发展,又享受到了高品质的生活环境。对紫金城有点兴趣可还在观望的有网友可以咨询售楼热线400-000-0728 转 029。目前优惠活动:购买三房户型总价减5万,购买两房户型总价减3万。