
“还记得南城95号和96号地的热拍吗?
多家房企轮番竞价,鏖战数小时
分别由亿峰房地产和田卫华所得
96号地块更是突破了仙桃历史楼面价!"
近日,仙桃自然资源和规划局公示了
两大楼盘的案名和规划出炉!
一起来看看吧!
地块一:仙地[2020]95号
沙嘴办事处博雅大道以北,永康路以东,69726.74平方米,容积率1.0-2.5。成交楼面价3356元。

规划基本信息
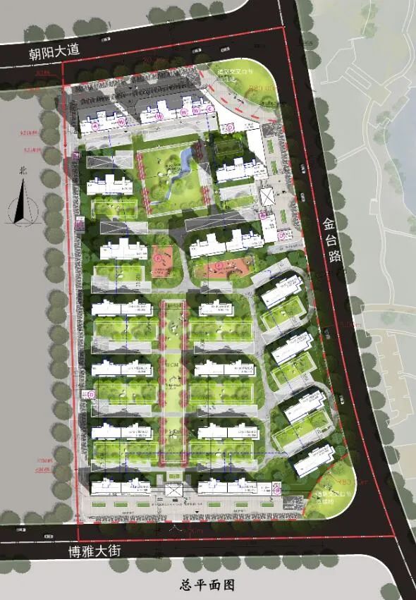
项目名称:朝阳丽景
申报单位:仙桃市意美房地产开发有限公司
建设用地面积:69726.74平方米
项目地址:永康路以东、朝阳大道以南、博雅大街以北
计容建筑面积:174316.85平方米
住宅建筑面积:164374.23平方米
容积率:2.5
建筑密度:26.48%
绿地率:35%
规划户数:1558户
停车位:1654个 (地面324个 地下1330个)
朝阳丽景规划效果图:

具体楼栋分布图:

日照分析图:

技术经济指标:

项目规划16栋,共计1558户,容积率2.5,绿化率35%,总用地面积88411.10平方米,1#—3#栋为10层-11层小高层,5#、8#、9#、10#、12#为17层-18层高层,13#-22#为21层——29层高层,项目共计64户不满足大寒日3小时日照标准。
地块二:仙地[2020]96号
沙嘴办事处博雅大道以北,金台路以西,74897.9平方米,容积率1.0-2.4。成交楼面价3399元。

规划基本信息
项目名称:蓝悦满庭春
申报单位:仙桃蓝悦置业有限公司
建设用地面积:74898平方米
项目地址:金台路以西、博雅大街以北
计容建筑面积:179755.2平方米
住宅建筑面积:174961.3平方米
容积率:2.4
建筑密度:15.63%
绿地率:35%
规划户数:1370户 (人口:4384)
停车位:1423个 (地面266个 地下1157个)
蓝悦满庭春规划效果图:

具体楼栋分布图:

日照分析图:

技术经济指标:


项目总规划18栋,规划户数1370户,规划机动车停车位1423个,规划配置公共服务有物业服务中心、未成年人活动区、室外健身活动场地等,其中1#、2#、3#、5#规划为11层小高层,6—13#栋为8栋17层高层,而15#、16#、18#栋为27层高层,17#、19#、20#栋为30层、31层超高层。该项目日照不满足大寒日日照3小时标准的户数为75户,其中1-2小时6户,2-3小时69户,其余户数均满足大寒日3小时日照标准。
【周边交通】
两大新盘均在沔阳公园西侧,靠近板块内城际仙桃站。朝阳大道、博雅大道、金台路、永康路等主干道,交通优势明显。
【周边配套】
拥有仙桃二中钱沟南路校区(小学、初中)、新三中(初中)、荣怀学校(一站式教育园)、新三中朝阳路校区(规划中)、新十一中(小学、初中)、仙桃中学(规划中)优质教育资源;临近沔阳公园、十全湖公园(规划中)等景观资源,西侧更规划有商业综合体,敬请期待!

【周边在售楼盘】
目前地块周边在售的新盘有锦绣江山·望府、蓝天白云、新城名都,成交均价超7000+,金科·御府、南城郡 、交投·当代满庭春MOMΛ、仙桃碧桂园、荣怀·及第世家、沔阳·天泽园、太子湖国际社区等同样在板块内。
两大新地王预计在5、6月份问世,其身份也决定了未来房价必然会引领全城,最终将站在高价位几乎毫无悬念!让我们共同期待吧~
———— / END / ————
以上为正文,仙桃楼市头条撰稿,欢迎转发,谢绝转载。
更多房产资讯问题,欢迎添加小编微信(xtfw666)咨询!
