仙桃南城新区,近年来一直受到zf以及房企的重视。随着zf各部门的迁入以及商圈的日益繁荣,在区域配套方面,占据了越来越多的优势,购房者的目光也越来越多的聚焦到这里。毋庸置疑,未来南城新区大有发展空间。

最近有细心的网友关注到,95号、96号、136号、137号、138号五个地块规划公示过去这么久了,现在情况如何了呢?

今天小编整理了一下,得到了以下“猛料”,一起来看看吧~

地块一:仙地[2020]95号
沙嘴办事处博雅大道以北,永康路以东,69726.74平方米,容积率1.0-2.5。成交楼面价3356元。

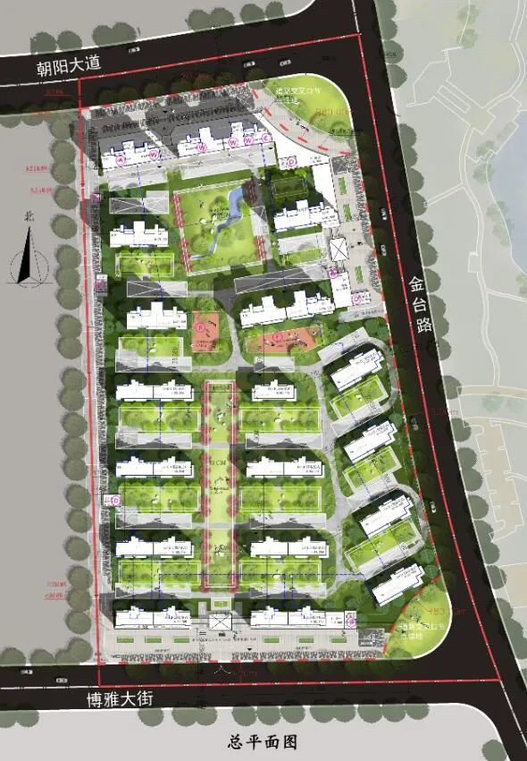
项目名称:朝阳丽景
项目简介:项目地处南城新区中芯,总规划用地面积88411平,总建筑面积约22.2万平方米,容积率2.5,绿地率达35%。由16栋10-29F小高层和高层组成,总户数有1558户住宅,机动车停车位有1654个(地面停车位254个/地下1400个)户型面积约60-200平满足各种面积段需求群体。
项目地址:永康路以东、朝阳大道以南、博雅大街以北
开发商:仙桃市意美房地产开发有限公司

走进项目售楼部便看到大厅内摆放的沙盘,从置业顾问那里我们了解到项目的一些动态。项目规划16栋,共计1558户,1#—3#栋为10层-11层小高层,5#、8#、9#、10#、12#为17层-18层高层,13#-22#为21层——29层高层。目前还在前期咨询中(预计10月份开盘),首推楼栋目前还未释放,大家可以期待一下。

在项目地,小编看到项目基本上都还处于基础底层地基建设当中。漫长的施工时间可能并不快,但在每一项施工环节中朝阳丽景均保证严谨苛刻的工作态度,严抓质量地完成每一项细节工作。

具体楼栋分布图:

该项目满足1小时但不满足2小时日照标准的共35户,满足2小时但不满足3小时日照标准的共194户。

项目优势:项目正大门旁有公立幼儿园,一条马路之隔就是仙桃三中朝阳校区(小学初中),目前还在规划中师资力量十分雄厚、仙桃二中南城校区、实验三小、新三中等,覆盖了幼儿园、小学、初中和高中全龄教育。仙桃三中朝阳校区在下图范围内:

地块二:仙地[2020]96号
沙嘴办事处博雅大道以北,金台路以西,74897.9平方米,容积率1.0-2.4。成交楼面价3399元。

项目名称:蓝悦·满庭春
项目简介:项目整体总规划用地面积74898㎡,总建筑面积约21.7万方,容积率2.4,绿化率35%。
项目地址:金台路以西、博雅大街以北
开发商:仙桃蓝悦置业有限公司

走进售楼部,一位专业的置业小哥哥接待了我们,为我们详细介绍了项目目前的最新动态以及项目的亮点。项目总规划18栋,规划户数1370户,规划机动车停车位1423个,规划配置公共服务有物业服务中心、未成年人活动区、室外健身活动场地等,其中1#、2#、3#、5#规划为11层小高层,6—13#栋为8栋17层高层,而15#、16#、18#栋为27层高层,17#、19#、20#栋为30层、31层超高层。项目目前还在前期咨询中(预计10月底开盘),开盘首推6#、7#、8#、9#、17#、19#、20#栋楼。

具体楼栋分布图:

该项目日照不满足大寒日日照3小时标准的户数为75户,其中1-2小时6户,2-3小时69户,其余户数均满足大寒日3小时日照标准。

项目在园林景观上精心打造主题景观入口,“一轴两环三园”的特色园林景观布局,再到每寸空间的悉心研磨与设想,从“亲近自然、回归至简、定制热爱、仪式生活”四个维度,给客户递交一份真挚的答案。

项目优势:地处南城住宅核芯区,内外双园,尽揽室外旖旎景色,依靠沔阳公园,坐落于前通河景观带之畔,拒绝喧嚣与污染,坐拥天然氧吧。在仙桃我们很少可以见到里公园、外公园环绕在小区周边,这样才是真正的做到“家在公园里”。

仙地【2021】136、137、138号三宗地由新城控股竞得!
其中,两宗住宅136、137地块230605.4㎡,成交总价172975.2万元;一宗商服138地块48679.1㎡,成交总价5900.42万元,三宗地总价17.8875亿元!仙桃南城新区大型商业综合体项目终尘埃落定,正为新城控股集团旗下的 “吾悦广场”购物中心!

项目名称:仙桃吾悦广场
项目简介:项目整体总规划用地面积356170㎡,总建筑面积约929911.21㎡,容积率2.18-2.80,绿化率30%。由南、北两个地块组成,涵盖多种业态,打造满足购物、居住、休闲、娱乐等为一体的城市商业综合体。
项目地址:
前通路东、朝阳大道南、永康路西、博雅大道北(136号)
永康路西、博雅大道南、新城大道以北(137号)
开发商:仙桃恒隽房地产开发有限公司

项目城市展厅已经对外开放,新售楼部正在搭建中。但是从那边的工作人员了解到,项目总规划38栋,规划户数4950户,规划机动车停车位5164个。项目目前还在前期咨询中(可意向登记),预计9月19日售楼中心开放,首开13#和17#楼,13#是17F的小高层、17#是34F的高层。

具体楼栋分布图:

该项目满足1小时但不满足2小时日照标准的共35户,满足2小时但不满足3小时日照标准的共194户。

项目优势:吾悦广场作为区域内大型商业综合体补缺者涵盖国际购物中心、主题商业街、人潮院街、城央奢宅等多种业态24小时精彩,繁华永不落幕。

另外,城西和南城新区也即将迎来两处新盘:
分别是西城名苑(拟规划中)总规划用地面积42287.49㎡,成交价2629.62元/㎡。

以及当代南城壹品MOMΛ(拟规划中)总规划用地面积111327.06㎡,成交价2763.03元/㎡。

小编目前还未得到官方正式发布的效果图,这里就暂时先不放了,大家可以期待一下哦~
小编说了这么多,大家也许会疑惑到底选择哪个楼盘好呢?
介绍的这些楼盘肯定是毫无疑问的好盘,是值得购买的楼盘,但到底是否适合大家,还要结合自身购房预算来看。如果这个楼盘能满足心目中的条件,同时房价也在预算之内,那么完全就可以放心入手啦~