近日
仙桃市自然资源和规划局发布
《交投·满庭春三五期项目调整规划方案批前公示》
一起来看看交投·满庭春项目三、五期做了哪些调整吧
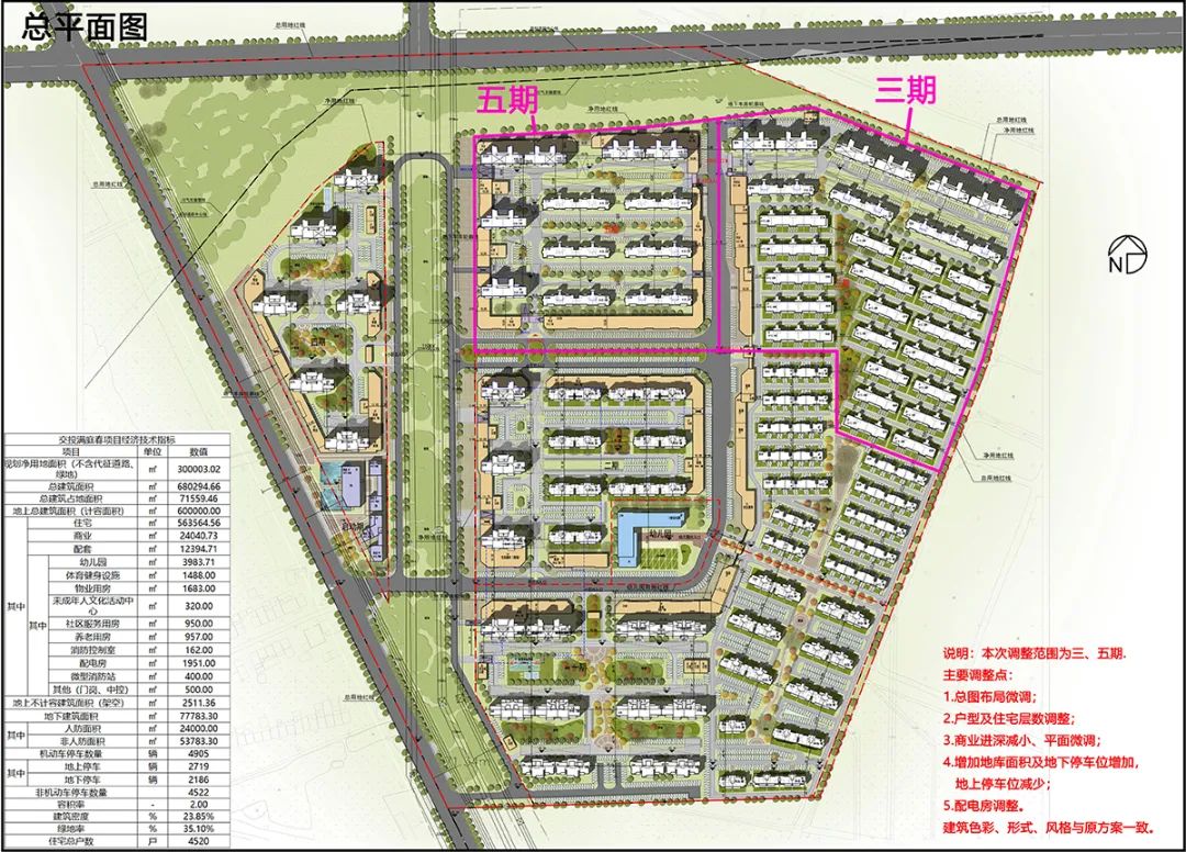
主要调整点:
1、总图布局微调;
2、户型及住宅层数调整;
3、商业进深减小、平面微调;
4、增加地库面积及地下停车位增加,地上停车位减少;
5、配电房调整。
建筑色彩、形式、风格与原方案一致。
➨交投·满庭春项目规划调整前后经济技术指标对比:

➨规划调整后总平面图:

➨调整后日照分析图:

本次交投·满庭春项目规划调整,主要变动在于:
总建筑面积增加7603.66㎡,其中住宅面积增加1036.56㎡,商业减少988.27㎡,配套减少48.29㎡,地下建筑面积增加7604.3㎡。
机动车地上停车位减少159辆,地下停车位增加159辆。
住宅总户数增加5户。
另外,从调整后的项目总平面图可以看到,交投·满庭春项目三五期原规划有楼栋共40栋,经过调整后楼栋为36栋(叠墅减少1栋,洋房减少3栋)。

*调整前后鸟瞰图对比

交投·满庭春项目位于仙桃市南城新区,仙汉大道东侧,杨岗大道南侧,是由湖北交投集团用心打造的实力大盘。
项目距仙桃站、南城客运站仅约1.5公里,自带约2.5万㎡社区商业风情街,荟萃休闲、娱乐、饮食等业态于一体,满足生活各种需求。

*区位图
交投·满庭春项目在售建面约110-151㎡高层/洋房、建面约120-156㎡轻奢叠拼、建面约52-414㎡临街旺铺,产品线丰富,户型全能多样,能满足不同家庭的置业需求。
特别是考虑改善置业,青睐洋房、别墅产品的客户,可以多多关注。
信息来源:仙桃市自然资源和规划局
长按识别小编号(xtfw123)
更多买房资讯、城建动向与您共享!
