近日,仙桃市自然资源和规划局发布一则南城新区地块调整方案公示,内容涉及到三宗地块,调整后其中两块将用于商业项目,一块用于住宅项目。...[详细]
2023年12月8日,新城控股集团华中区域第8座、湖北省内第7座城市综合体,“仙桃吾悦广场”在仙桃南城新区盛大启幕,开业迎宾!...[详细]
水云间五期,毗邻仙桃市汉江公园项目(江滩公园),绿意繁茂,回归自然,公园内各种运动场地齐备,游乐、休憩、健身、运动,一面收获静谧自然,一面拾取运动健康。...[详细]
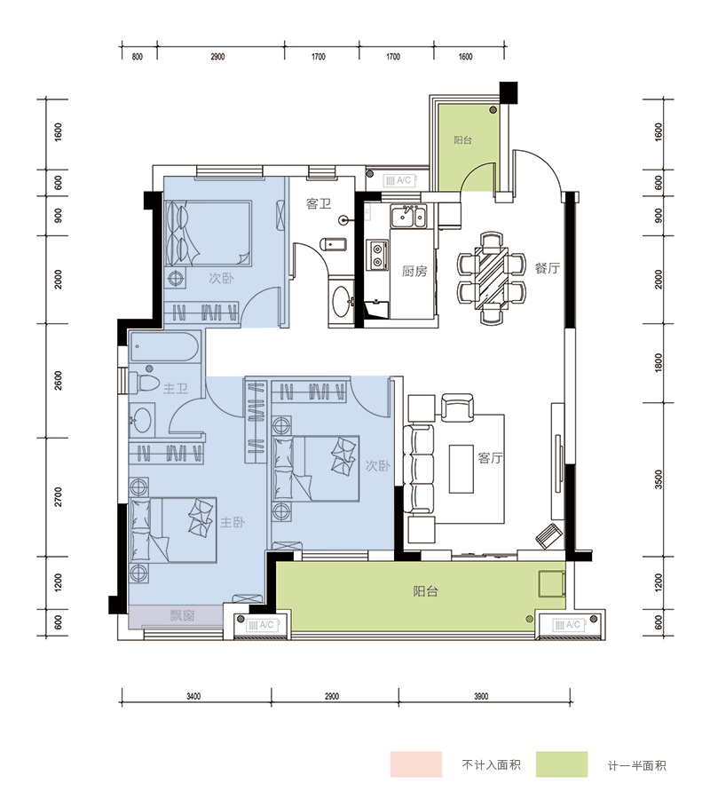
水云间五期,作为继前四期之后再次开发的升级之作,根植于每位居住者的生活习惯、家庭结构、成长需求,匠心设计建面约121㎡舒适三房户型,从空间到尺度、从功能性到舒适度,为业主们营造宽居体验。...[详细]
仙桃市2023年11月房地产市场运行情况...[详细]
金科·御府项目2023年11月工程进度...[详细]
承载众多期盼的品质项目水云间五期问世,新品加推限量10套钜惠房源,单价低至4688元 ㎡。...[详细]
荣怀·及第世家,即使是一楼房源,都可呈现“看得见,摸得着”的好品质。...[详细]
仙桃市物业行业开展消防演练...[详细]
交投·满庭春项目工程进度...[详细]
值班:阳阳
微信:xtfw123
热线:18986922089
0
朝阳大道与永康路交汇处
6900元/m²
仙桃南城朝阳大道8号(前通路与朝阳大道交叉路口向西300米)
7400元/m²
6500元/m²
沔州大道以北,仙彭公路以西
仙桃市南城新区前通路与新城大道交汇处
仙桃市博雅大道与金台路交汇处
5000元/m²
沔州大道与仙洪公路交汇处
18000元/m²
仙桃排湖风景区沔阳小镇
2688元/m²
仙北仙桃汉江大桥以东,滨江大道以南的交汇处
4700元/m²
仙桃市干河办事处麦芽路(9路公交车直达)
5700元/m²
仙桃市沙嘴街道钱沟南路60号(天诚酒店西门)