近日,官方公布仙桃南城新区拟出让三个地块挂牌消息,涉及到一宗商服住宅用地、两宗商业用地。本次土地拍卖出让采用增价拍卖的方式,预计将于2024年7月11日开拍。
以下为本次土拍地块详细信息:

*图源仙桃市自然资源和规划局
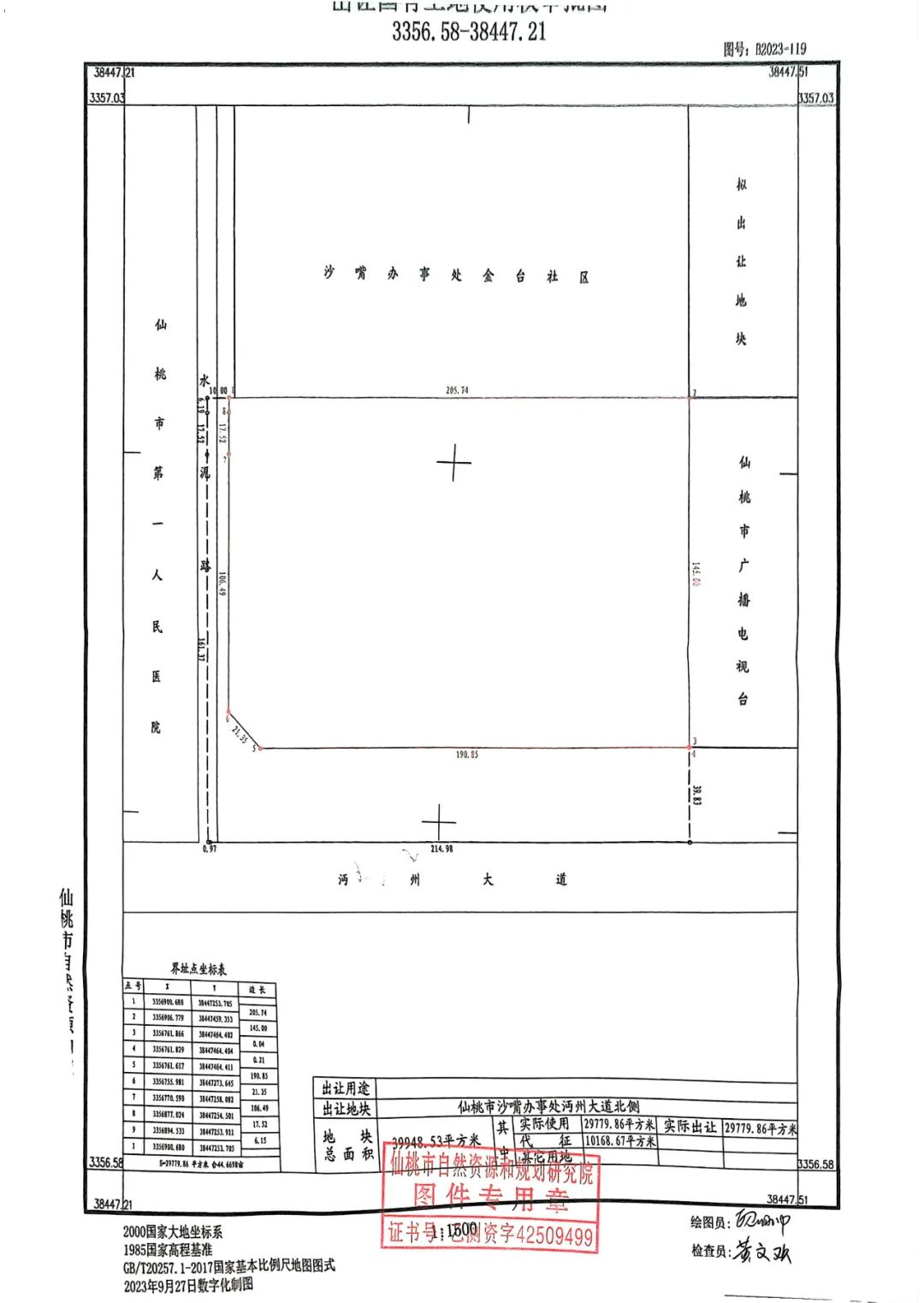
仙地[2023]57号
地块位置:沙嘴街道办事处沔州大道以北、广播电视台以西
出让面积:29779.86平方米
土地用途:商服住宅
出让年限:40/70年

*实拍图,地块大小区位供参考
容积率:>1.0且≤2.4
建筑密度:≤22%
绿地率:≥35%
起始价:16347万元
起拍楼面价:2287.20元/㎡

*红线图
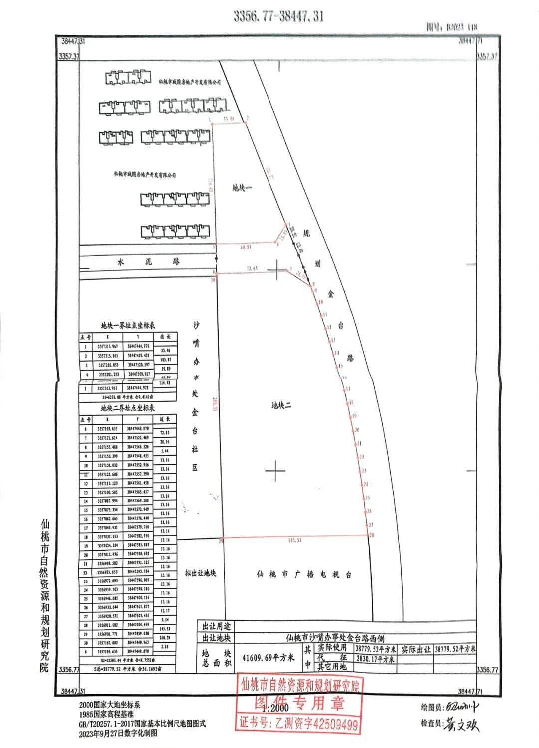
仙地[2023]145号
地块位置:沙嘴街道办事处广播电视台以北、金台路以西
出让面积:38779.52平方米
土地用途:商业用地
出让年限:40年

*实拍图,地块大小区位供参考
容积率:≤2.5
建筑密度:≤60%
绿地率:≥10%
起始价:7330万元
起拍楼面价:756.07元/㎡

*红线图
仙地[2023]146号
地块位置:沙嘴街道办事处沔州大道以北、金台路以东
出让面积:6839.04平方米
土地用途:商业用地
出让年限:40年

*实拍图,地块大小区位供参考
容积率:≤2.0
建筑密度:≤60%
绿地率:≥10%
起始价:1215万元
起拍楼面价:888.28元/㎡

*红线图
其他条件:
竞买人须同时对仙地[2023]57号、仙地[2023]145号、仙地[2023]146号地块提出竞买申请,并对145号地块自持不低于3万方建筑自主运营,自持时间不得少于5年。
拍卖时间:
2024年7月11日9时至2024年7月11日15时。
本批次地块含金量很高
紧邻南城新区沔阳公园
生态环境优良
地块周边多个住宅小区均已交房
随着越来越多业主们装修入住
周边人气逐渐攀升
这三宗地块成功拍出后
将为南城新区住宅、商业楼市注入更多活力
【仙桃楼市】将持续为您关注土拍结果!
如想获取更多信息,可扫描下方二维码,
添加小编阳阳咨询详情。

信息来源:仙桃市自然资源和规划局