登录
免费注册
江汉热线
经纪人管理平台
微信公众号
手机版
地图找房
网站导航
新房
新房列表
优质好房
特惠房源
楼盘速递
楼盘问答
专家荐房
房博士
户型大全
地图找房
二手房
出售信息
出租信息
发布信息
资讯
小编说房
楼盘导购
本地楼市
楼市行情
工程进度
小编陪购
房产专题
楼盘快讯
二手房资讯
仙桃
天门
潜江
孝感
荆州
新房
新房
二手房
租房
资讯
搜索
首页
新房
资讯
二手
荐房
房管家
邻校房
房产论坛
您当前位置:
仙桃房网
>
新房列表
>
明珠豪庭一期
明珠豪庭一期
已经售完
0728-3323668
楼盘免费咨询电话
楼盘首页
楼盘详情
楼盘动态
沙盘
资讯
相册
问答
行情走势
更新于2011年05月28日 点击:
视频加载中
播放
播放
重播
全屏
静音
最大音量
您的浏览器版本过低
需要升级
参考均价
已售完
房贷计算器
降价新优惠通知我
优惠折扣
暂无
[我要看房]
最新看房活动、优惠信息免费通知我
参与人数:1人
立即申请
开盘时间
2006-12-8
交房时间
---
楼盘地址
仙桃市宏达路126号[城南版块]
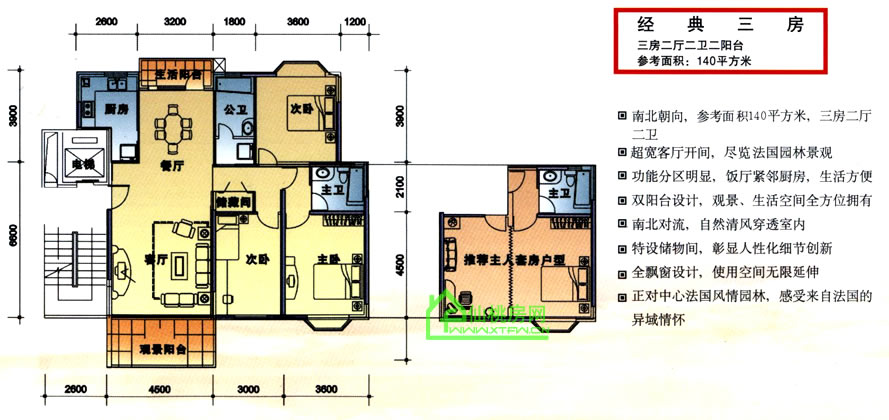
主力户型
全部户型
物业公司
武汉华夏物业管理有限公司
物 业 费
0728-3323668
楼盘免费咨询电话
安全通话隐藏真实号码,致电售楼处了解更多信息
明珠豪庭一期
二手房
更多二手房
纺织工业园区棉纺厂40平
1室1厅1卫 40m²
5.50万
房东亏本出售,城南电梯小高层, 总高8楼,中间好楼层,精装三房
3室2厅2卫 130m²
72.00万
沃尔玛附近,明珠豪庭,精装三房,配套齐全,诚心出售
3室2厅2卫 132m²
60.00万
明珠豪庭一期
资讯
更多资讯
预售证
仙开管预售
1970-01-01
明珠豪庭一期
问答
更多问答
提交问题
明珠豪庭一期
相册
更多相册
楼盘实景
样板房
户型
您可能想看
恒迪建材城四期
城西版块
参考均价:5000元/m²
西郊庄园
乡镇
参考均价:6200元/m²
康湾熙岸
老城区
参考均价:5500元/m²
元泰商业街
城南版块
参考均价:0
发布房源
房贷计算器
微信公众号
微信客服
获取优惠
您的称呼:
您的电话:
提交信息
地图找房
0728-3319567
新房列表
|
户型大全
|
楼盘问答
|
特惠团